-
松山市生石町建売③松山市生石町
◆駐車3台可能で来客時や複数台持ちでも安心
◆耐震等級3相当で地震に強い安心の住まい
◆オール電化+ZEH仕様で省エネ&快適な暮らし
◆断熱性能5等級以上で一年中過ごしやすい
3,098万円
40年 頭金0円 ボーナス0円
月々79,069円
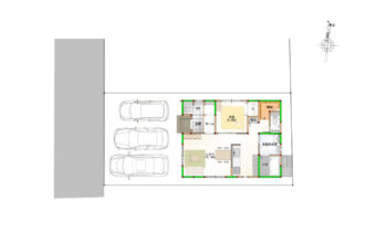
4LDK
敷地面積 120.96m2(36.59坪)
建物面積 103.02m2(31.16坪)
駐車場3台可
1F間取り

2F間取り

■借入金額 3,098万円 ■伊予銀行/変動金利/金利1.05%(2026年4月) ■40年返済で計算しています。
■所在地/松山市生石街■交通/伊予鉄道郡中線 土居田駅徒歩12分■用途地域/準工業■販売戸数/1戸■地目/宅地■建蔽率/60%■容積率/200%■建築工法/木造(軸組工法)■接道/西側4.1m(私道)■設備/上水道・下水道・オール電化■学区/たちばな小・雄新中■取引形態/仲介
アクセスマップ
ACCESSMAP暮らしやすい立地・環境
LOCATION◆前面道路が広く駐車もしやすい立地
◆フライブルク通り沿いで車でのアクセスも良好
◆周辺に商業施設や飲食店が揃い、利便性の高い環境

松山市たちばな小学校
1600m

松山市立雄新中学校
1400m

モスバーガー松山フライブルク通り店
47m

ファミリーマート松山フライブルク通り店
89m

認定こども園アイドル園
160m

スシロー松山生石店
300m

伊予銀行空港通支店
350m

みねおい内科・循環器内科
400m

セブンスター南江戸店
700m

ドラックストアコスモス竹原店
700m
- 松山市立たちばな小学校
- 20m徒歩20分
- 松山市立雄新中学校
- 1400m徒歩18分
- モスバーガー松山フライブルク通り店
- 47m徒歩1分
- ファミリーマート松山フライブルク通り店
- 89m徒歩2分
- 認定こども園アイドル園
- 160m徒歩2分
- スシロー松山生石店
- 300m徒歩4分
- 伊予銀行空港通支店
- 350m徒歩5分
- みねおい内科・循環器内科
- 400m徒歩5分
- セブンスター南江戸店
- 700m徒歩9分
- ドラックストアコスモス竹原店
- 700m徒歩9分
こだわりの内観
INTERIOR◆約15帖のLDKでゆったりくつろげる空間
◆人気の対面キッチンで家族との会話も弾む
◆食洗機・IHコンロ付きで家事ラク仕様
◆浴室乾燥暖房機付きで雨の日の洗濯も安心
充実した設備
FACILITYしあわせ住まい松山の建売住宅とは
CONCEPT注文住宅のノウハウがぎっしり!
(株)幹建設は、注文住宅業界で30年・建築棟数2,000棟・3年連続中予地区no1の実績があります。
「しあわせ住まい松山」の”建売住宅”は、2,000棟の実績から培った『良い所』を集結して造った建売住宅です。
間取り・・家がすっきり片付く“収納術”と、家族の動線を考えて作っています!
土地・・・日当りの良さ、車の止めやすさ、周辺環境など、立地もこだわっています。
設備・・・注文住宅と同じ品質の設備を標準搭載。
構造・工法・・長期間安心の集成材を使用した木造在来工法で、地震にも強い設計です。
保証・・・安心の10年瑕疵保証付き住宅













